Nur für Gewerbetreibende

Wir haben vom 24.12. bis 02.01.2026 geschlossen - Shop-Bestellungen werden ab dem 05.01.2026 wieder bearbeitet.

Abbildung ähnlich
Menke

Menke Kammerprofil - 15mm - mit Nase - mit Schaumklebeband - 40x15mm - Canadian [79]

4055032365807 4055032365807 078274K49195
auf Anfrage
je 1 m
keine Verfügbarkeitsinformationen

Verpackungseinheiten

6 m
60 m

Verkaufsdaten

Mindestbestellmenge 6 m
Bestellschritt 6 m

Beschreibung

Suchst du ein bestimmtes Dekor für dein Profil?

Alle Dekore findest du im Menke Dekorfinder

Merkmale

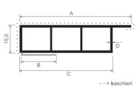
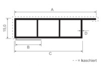
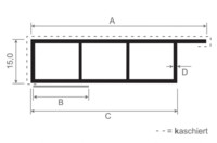
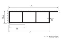
Querschnittmaß 40x15 mm
Farbe Kammerleiste Canadian [79]
Nase Ja
Schaumklebeband Ja
Profilform rechteckig
Länge Kammerleiste 6000 mm
WhatsApp
Mail
Anrufen