Nur für Gewerbetreibende

Wir haben vom 24.12. bis 02.01.2026 geschlossen - Shop-Bestellungen werden ab dem 05.01.2026 wieder bearbeitet.

Abbildung ähnlich
EXTE

EXTE-Deckleisten - 15mm - mit Nase - mit Schaumklebeband - 60x15mm - Weiß 9016

EXT300-60 4027729123557
auf Anfrage
je 1 m
keine Verfügbarkeitsinformationen

Verpackungseinheiten

60 m

Verkaufsdaten

Mindestbestellmenge 60 m
Bestellschritt 60 m

Zubehörempfehlung für Sie:

Beschreibung

Bereits mit Schaumklebeband ausgestattetes Kammerprofil für eine einfache und problemlose Verarbeitung.

Material: PVC weiß
Einsatzgebiet: Für den Außen- und Innenbereich

Merkmale

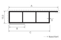
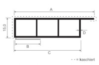
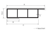
Querschnittmaß 60x15 mm
Farbe Kammerleiste Weiß 9016
Nase Ja
Schaumklebeband Ja
Profilform rechteckig
Länge Kammerleiste 6000 mm
WhatsApp
Mail
Anrufen