Nur für Gewerbetreibende

Wir haben vom 24.12. bis 02.01.2026 geschlossen - Shop-Bestellungen werden ab dem 05.01.2026 wieder bearbeitet.

Abbildung ähnlich
Simonswerk

Variant Einbohrband steigend Holzzarge V5150/NEU:V5450 15 vernick. li

BAK045-02 4015471040482 5010510201502
auf Anfrage
je 1 St
keine Verfügbarkeitsinformationen

Verpackungseinheiten

2 St

Verkaufsdaten

Mindestbestellmenge 1 St
Bestellschritt 1 St

Beschreibung

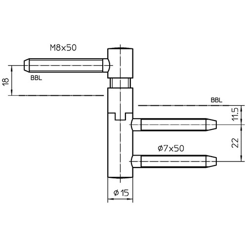
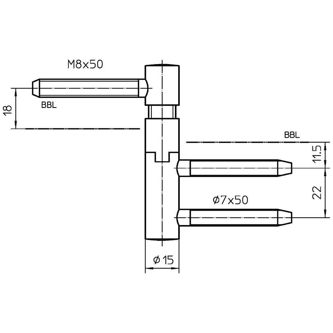
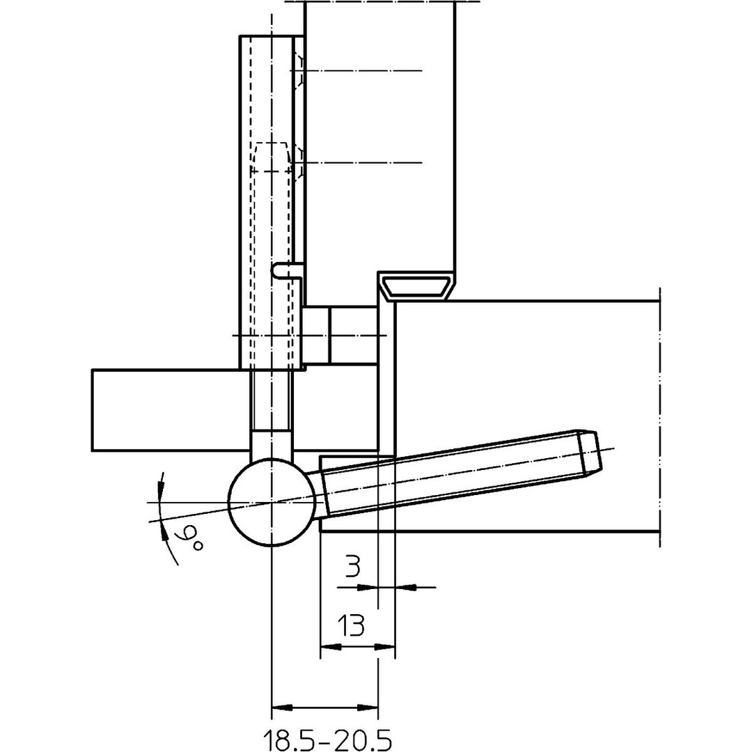
VARIANT V 5450 vernickelt DIN links - mit Steigsatz für gefälzte Türen an Holzzargen

Hersteller Link

Merkmale

Belastungswert 40,0 kg
Rollendurchmesser 15 mm
DIN-Richtung Links
Bandoberfläche vernickelt
Falzausführung gefälzt
Rahmenausführung Blendrahmen, Blockzarge, Futterzarge
WhatsApp
Mail
Anrufen